
Die Liegenschaft an der Goldermattenstrasse, welche die lrene-Stiftung im Jahr 2021 erlangt hat, liegt in einem Wohnquartier, die von einer Gartenstadt-Struktur geprägt ist. Vom äusseren Ausdruck zeichnen sich die Häuser durch eine offene Fassade mit beinahe mediterranem Charme aus. Im Inneren stechen die Wohnungen durch eine grosse Kompaktheit heraus, die nach heutigen Standards kaum noch zu erreichen ist. Dies bietet eine gute Grundlage, um die bestehende Struktur weitestgehend zu erhalten und durch gezielte Eingriffe die Wohnqualität entscheidend zu verbessern.
Ein Teil-Ersatzbau ermöglicht die Freiflächen neu zu definieren. Der Neubau bildet mit den bestehenden Häusern eine L-Form und schafft so neue, qualitativ hochwertige Aussenräume. Es entsteht ein gefasster Innenhof, der das gemeinschaftliche Leben in den Häusern fördert. Zur Strasse erstreckt sich am Eck ein öffentlicherer Platz, welcher von allen im Quartier gut zugänglich ist und um zum Austausch mit den Nachbar:innen anregt.
Im Innern werden in den bestehenden Gebäuden durch kleine Eingriffe die Wohnungen optimiert. Die Küche und das Wohnzimmer werden über die Entfernung von zwei Wänden zusammengelegt. Es entsteht ein offener Wohn- und Küchenbereich, der durch eine neue Garderobe und Wandschrank strukturiert wird. Darüber werden die Wohnungen grosszügiger, heller und es entstehen fliessende Räume. Die damit einhergehende Reduzierung von reinen Erschliessungsflächen führt zu mehr nutzbaren Raumflächen. Das neue Garderobe- und Wandschrankelement bildet einen neuen Eingangsbereich, in dem man in der Wohnung ankommen kann, ohne gleich mit der Tur in die Wohnung zu fallen. So bleibt die Charakteristik von addierten Räumen bestehen und die Wohnung kann weiterhin in privateren und öffentlicheren Bereichen organisiert werden. Der Balkon wird vor der Küche über einen Anbau erweitert, wodurch der private Aussenraum mehr Gewicht bekommt.
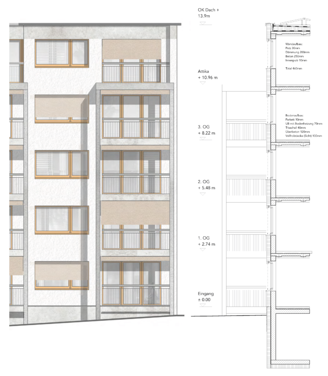
Der Neubau nimmt im Grundriss den Bestand auf und übersetzt ihn in die heutige Zeit. Es entstehen darin 4 1/2- und 3 1/2-Zimmerwohnungen. Zuoberst bietet eine Attika-Wohnung einen Blick über das Quartier. In den Wohnungen kommt man in einem Eingangsbereich mit Garderobe an, der in die Wohnung mit offener Küche führt. Grosse Fensterflächen schaffen lichtdurchflutete Räume, über die man einen Bezug zum begrünten Aussenraum hat und das äussere Geschehen verfolge kann. Von der offenen Wohnzone gehen die einzelnen Zimmer ab, die über ihre ähnliche Grösse flexibel eingerichtet und genutzt werden können.










Projekt
Studie, Umbau / Neubau
Anstellung/Freelance
Projektbearbeitung bei Büro jea.Architektur
Jahr
2023